| THÔNG TIN CÔNG TRÌNH | |
| Công trình: | Thiết kế nội thất nhà phố 2 tầng |
| Chủ đầu tư: | Chị Phương |
| Địa chỉ: | Phú Thọ |
| Diện tích: | 85m2 (9.9m x 8.6m) x 2 tầng |
| Hạng mục: | Phòng khách – Bếp, 3 phòng ngủ, phòng thờ, 2 WC |
| Phong cách thiết kế: | Hiện đại trẻ trung |
| Chất liệu sử dụng: | Gỗ công nghiệp MDF |
| Đơn vị thiết kế, thi công: | Nội Thất An Lộc |
Đăng ký nhận báo giá công trình này!
Miễn phí 100%
Miễn phí 100%
Chi tiết công trình thiết kế nội thất nhà phố của gia đình chị Phương tại Phú Thọ với diện tích mỗi sàn khoảng 85m2. Mời quý vị cùng tham khảo:
Liên hệ ngay: 0966 176 288 để được tư vấn miễn phí!
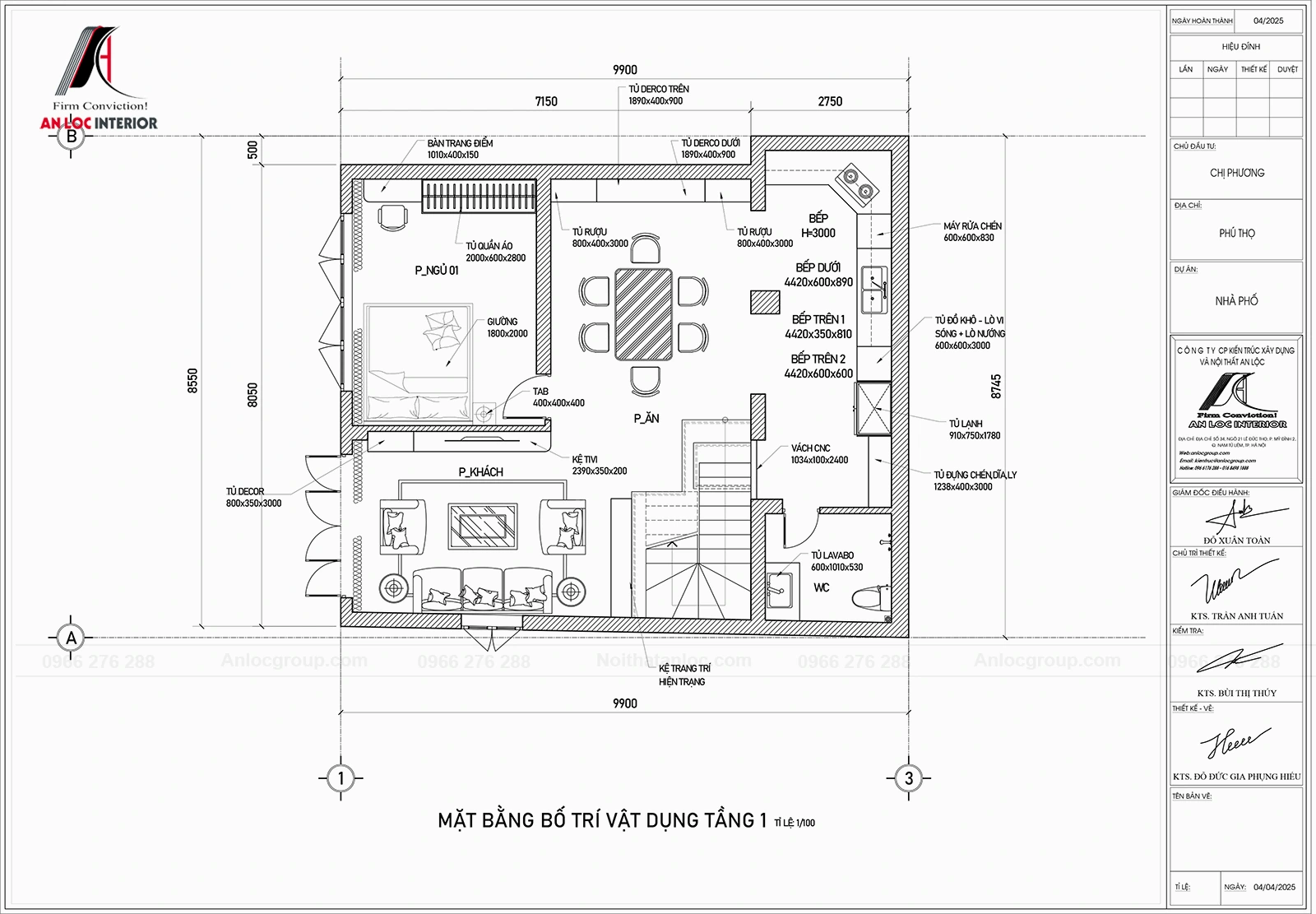
Nội thất tầng 1 nhà phố 85m2 tại Phú Thọ
Mặt bằng bố trí nội thất tầng 1
Phòng khách + Bếp
Phòng ngủ 1 (Tầng 1)
Phòng WC tầng 1
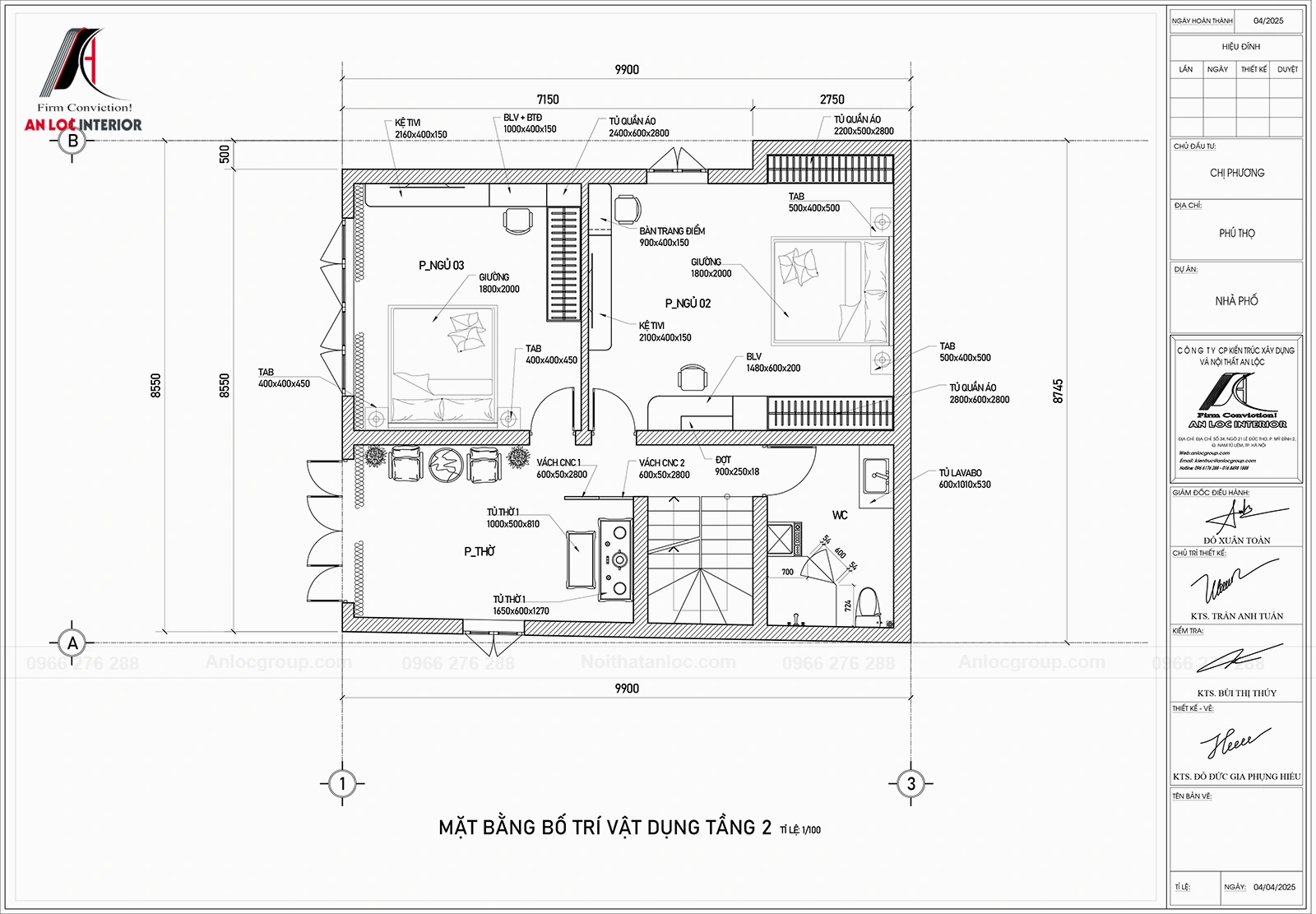
Nội thất tầng 2 nhà phố 85m2 tại Phú Thọ
Mặt bằng bố trí nội thất tầng 2
Phòng ngủ 2
Phòng ngủ 3
Phòng thờ
Phòng WC tầng 2
Mời bạn tham khảo thêm các mẫu thiết kế nội thất nhà phố đẹp. Hoặc liên hệ ngay Nội Thất An Lộc hotline: 0966 176 288 (Hoặc nhắn Zalo) để được tư vấn chi tiết.
Chi tiết công trình thiết kế nội thất nhà phố của gia đình chị Phương tại Phú Thọ với diện tích mỗi sàn khoảng 85m2. Mời quý vị cùng tham khảo: Liên hệ ngay: 0966 176 288 để được tư vấn miễn phí! Nội thất tầng 1 nhà phố 85m2 tại Phú Thọ Mặt bằng…



































































